Inhaltsverzeichnis
OBPkeypad
Tastenerweiterung für die OBP-Geräte über NMEA2000.
- Für Anwender: Kurzanleitung
- Für Entwickler: Entwicklungs-Hinweise
Auf Open Boat Projects: https://open-boat-projects.org/de/obpkeypad-6-1/
Designentscheidungen
- NMEA2000-Tastatur
- Das Gerät soll wasserdicht sein
- Es sollen 6 Tasten wie beim OBP60 verwendet werden
- Die Tasten sollen „echte“ Tasten sein, die ein gutes haptisches Feedback liefern und blind ertastet werden können
- Ein Tastendruck liefert ein optisches Feedback
- Ein Tastendruck liefert ein akustisches Feedback
- Die Tastatur soll dynamisch an verschiedene Zielgeräte gekoppelt werden können
- Konfiguration über eine Weboberfläche
- DIY-freundlich
- Gehäuse muß im 3D-Bauraum von 160x160x160 druckbar sein
Hardwareentwicklung
Ein erster Prototyp wurde produziert: OBPkeypad 6/1
Eine verbesserte, zweite Version ist in der Entwicklung.
- Basierend auf einem Waveshare ESP32-S3 Nano
- kann direkt an 12V (6-21V Eingang) betrieben werden
- 6 Tasten (1 bis 6)
- +1 Taste für Zielauswahl (DST)
- 3 LEDs für Zielanzeige (A, B, C)
- 1 RGB-LED für Statusanzeige
- 1 Buzzer für akustisches Tastenfeedback
- NMEA2000 / CAN
- I²C Steckplätze
- 2x Buchsenleiste 4pol
- 1x Temperatur / Feuchtesensor SHT31
- 1x qwiic-Anschluß (3,3V)
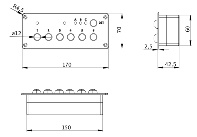
- Maße: BxHxT = 170x70x42,5mm
- Einbautiefe = 40mm
- Ausschnitt = 150x60mm
- Gewicht: 215g
Bei der Platine wurde bewußt auf SMD-Bauteile verzichtet, so daß die Bauteile leicht im 2.54mm Raster bestückt werden können. Die am schwierigsten zu lötenden Bauteile sind die RGB-LED mit 4 dicht aneinanderliegenden PINs, sowie das MOSFET für den Buzzer mit 3 engen Pins.
Die Gehäusevorderseite ist mehrfarbig gedruckt. Zur Basisfarbe kommt noch die Beschriftung hinzu, sowie die transparenten Flächen die die LEDs abecken. Für die Vertiefung der Tastenabdichtung wird ein Stützfilement benötigt. Damit werden für den Druck die vier zumeist vorhandenen Filemente eines Wechslers benötigt.
Softwareentwicklung
- Es wird platformio verwendet wie bei den anderen OBP-Projekten auch
- Es wird in C++ programmiert
- Das Gerät ist ein einfaches Gerät und bekommt eine neu entwickelte Firmware
- Die Web-Konfigurationsoberfläche lehnt sich an die Bedienung des OBP60/40 an
- Es können verschiedene Arten von Tastendrücken ausgewertet werden
- kurz, weniger als 1 Sekunde gedrückt
- mittel, zwischen 1 und 3 Sekunden gedrückt
- lang, mehr als 3 Sekunden gedrückt
- Es soll einen Tag- und Nachtmodus geben
Firmware
Die Firmware befindet sich in Entwicklung, momentan ist noch kein öffentlicher Download verfügbar. Es muß selbst mit PlatformIO kompiliert werden. Insbesondere die Firmware-Update-Funktion über WLAN ist noch nicht eingebaut. Bitte direkt Kontakt aufnehmen.
Zusammenbau
- NMEA2000-Buchse in das Gehäuse einschrauben.
- Anschlußkabel auf 20cm kürzen
- Stromversorgungskabel (weiß und blau) an den großen Terminalblock auf der Hauptplatine anschließen
- CAN-Bus an den Terminalblock auf dem CAN-Transceiver anschließen
- Zuvor den CAN-Bus Abschlußwiderstand vom Modul entfernen
- Wenn keine Sicherung F1 bestückt ist, Jumper auf JP1 aufstecken
- LED-Platine in Gehäusevorderseite einschrauben
- Tasten in Gehäusevorderseite einschrauben
- Unverkabelte Tasten zuvor mit Kabeln versehen
- Zur Mutterbefestigung das mitgelieferte Werkzeug verwenden
- Massekabel der Tasten mit der Wago-Verteilerklemme verbinden. Bei Geräteversion 2 an die Terminalblöcke auf der LED-Platine
- Signalkabel der Tasten mit den Anschlüssen 1 bis 7 des zugehötigen Terminalblocks J2 verbinden
- Bei Geräteversion 1 die Masseverbindung von WAGO-Klemme mit GND bei den Tastenanschlüssen verbinden
- LED-Verbindungskabel auf der Hauptplatine anschließen
- Silikonschnur in die dafür vorgesehene Nut enlegen und passend kürzen. Keine Lücke zwischen den Enden entstehen lassen
- Gehäuseteile mit den 4 längeren Schrauben zusammenbauen
- Gerät an NMEA2000 anschließen
- Es erfolgt ein LED-Test, d.h. alle LEDs leuchten einmal kurz auf
- Konfiguration über die Web-Oberfläche
Einbau
Das aktuelle Gehäuse ist für einen flächigen Einbau vorgesehen. Dazu ist ein Auschnitt der Größe 150×60 mm² erforderlich, siehe nachfolgende Skizze.
Der NMEA2000-Anschluß ist seitlich herausgeführt, damit benötigt er keine zusätzliche Einbautiefe.
Bauteilliste
Für Version 2.0, vorläufig
1x Platine MCU 1x ESP32-S3 Nano, Waveshare Modul 6x Widerstand 330 Ohm 1x Widerstand 150 Ohm 1x 2N7000 MOSFET 1x Buzzer, passiv, 12V 1x Terminalblock 2pol. 5.08mm schraubbar 1x Terminalblock 8pol, 2.54mm schraubbar 2x Steckerleiste 2pol 2.54mm 2x Jumper 2,54mm 2x Buchsenleiste 4pol 2.54mm 1x Buchsenleiste 4pol 2.54mm liegend 1x JST-Steckerleiste 7pol 1x Platine LED 1x RGB LED (gemeinsame Kathode), 5mm, diffus 3x LED grün 5mm, diffus 1x LDR Lichtsensor 5mm 1x Widerstand 10k, 1% Toleranz 2x Terminalblock 4pol. 2.54mm schraubbar 1x Buchsenleiste 2pol 2.54mm liegend 1x JST Buchse 7pol mit 15cm Kabel 1x SN65HVD230 CAN Transceiver 1x Gehäuse 1x Gehäusevorderseite, grau 1x Gehäuserückseite, dunkelblau 6x Taster weiss, 12mm 1x Taster blau, 12mm 7x O-Ring, ID=12mm, D=1,0 oder 1,5mm 8x Schaltkabel 0,25mm schwarz 15cm 7x Schaltkabel 0,25mm grün 15cm 1x M12 Micro-C Einbaubuchse, Pigtail 4x Befestigungsschraube M4 8x Gehäuseschraube M2,5x10 Senkkopf 4x Platinenschraube M2,5x6 1x Silikondichtschnur 2mm, l=450mm 1x Schrumpfschlauch
Ausblick
Nachdem der Prototyp auf der Messe boot 2026 in Düsseldorf ausgestellt wurde haben sich durch verschiedene Gespräche Ideen für weitere Anwendungsfälle ergeben:
- Fernsteuerung für Autopiloten
- NMEA2000, direkt
- Seatalk 1, Ansteuerung über ein Gateway wie z.B. den OBPHUB4 oder HALSER von Hat Labs
- Tasten zur Dokumentation von Segelwechseln
- Schnittstelle zu Logbuch-Programmen?


